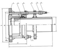
VSSJA-1型單法蘭限位伸縮接頭
VSSJA-1型單法蘭限位伸縮接頭是泵、閥門等設備與管道連接的新產品,通過全螺栓把它們連接起來,使其成為一個整體,并有一定的位移量,這樣就可以在安裝維修時,根據現場安裝尺寸進行調整,在工作時,可以把軸向推力傳…
VSSJA-1型單法蘭限位伸縮接頭是泵、閥門等設備與管道連接的新產品,通過全螺栓把它們連接起來,使其成為一個整體,并有一定的位移量,這樣就可以在安裝維修時,根據現場安裝尺寸進行調整,在工作時,可以把軸向推力傳還至整個管道。這樣不僅提高工作效率,而且針對泵、閥門等設備起到一定保護作用。


法蘭限位伸縮接頭是在AF型法蘭松套補償接頭的基礎上增設限位螺柱而成,最大伸縮量處用雙螺母鎖定,補償因熱脹冷縮和地基沉降引起的管線軸向位移及撓曲和偏心,從而保護閥門的設備。根據連接方式的不同分為單法蘭限位伸縮接頭和雙法蘭限位伸縮接頭。
單法蘭限位伸縮接頭應用范圍:
VSSJA-1型單法蘭限位伸縮接頭產品適用于輸送海水、淡水、冷熱水、飲用水、生活污水、原油、燃油、潤滑油、成品油、空氣、煤氣、溫度不高于250度的蒸汽和顆粒粉狀等介質。
單法蘭限位伸縮接頭安裝說明:
單法蘭式限位伸縮接頭,型號VSSJA-1或BF型,單法蘭限位伸縮接頭是由松套伸縮接頭和一個限位短管組合而成。VSSJA-1單法蘭限位伸縮接頭能防止管道因超量位移導致補償接頭的泄漏或損壞,主要用于在允許位移范圍內吸收軸向位移和承受軸向壓力推力的管道松套連接。
單法蘭限位伸縮接頭優點:
安裝方便快捷、密封可靠、維修方便。
單法蘭限位伸縮接頭特點:
實現了管道一邊法蘭連接,一邊為焊接的不一致性的方便連接

VSSJA-1型單法蘭限位伸縮接頭材料表

VSSJA-1型單法蘭限位伸縮接頭技術參數

如果您有這方面的需求,請及時聯系我們銷售經理13140182505
壓蓋式松套伸縮接頭
伸縮節 伸縮器
SQX雙法蘭限位伸縮器
購買三元乙丙橡膠軟接頭找新躍供水
熱烈慶祝鞏義新躍供水材料有限公司成功增資壹仟萬
新躍供水專業生產的防水套管有哪幾種
橡膠接頭 撓性橡膠接頭…
橡膠接頭、卡箍橡膠接頭、大翻邊橡膠接頭新躍橡膠接頭廠家,專業生產,量大從優!

不銹鋼雙法蘭限位伸縮…
不銹鋼雙法蘭伸縮接頭是由本體、密封圈、壓蓋、伸縮短管等主要部件組成。在松套伸縮接頭原有性能的基礎上增設限位裝置,在最大伸縮量處用雙螺母鎖定。管道在允許的伸縮量中可以自由伸縮,一旦超…

可曲撓橡膠接頭
可曲撓橡膠接頭簡介可曲撓橡膠接頭又叫做橡膠管軟接頭、柔性橡膠接頭、橡膠軟接頭、橡膠接頭、高壓橡膠接頭、橡膠減震器、補償器等。按連接方式分松套法蘭式、固定法蘭式和螺紋式3種;按結構可分…

人防穿線密閉套管
穿線密閉套管說明:1、當迎水面為腐蝕性介質時,可采用封堵材料將縫隙封堵;2.套管穿墻處如遇非混凝土墻壁時,應局部改用混凝土墻壁,其澆注范圍應比翼環直徑(DS)大200,并且必須將套管一次澆固…



![{sdcms[webname]} {sdcms[webname]}](/skins/2009/dw/images/foot_logo.png)
微信